Sold STC
Offers in Excess of £250,000

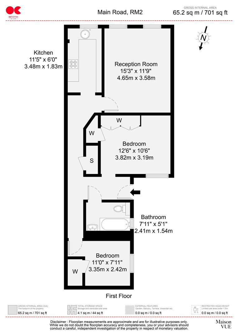
2 bed flat for sale in Main Road, Gidea Park (ref: 34189888)

Shortlist

Key features

  • INVESTMENT OPPORTUNITY
  • TENANCY IN PLACE AT £1550 PCM
  • 8% RENTAL YIELD
  • 2 BED APARTMENT ABOVE COMMERCIAL
  • LONG LEASE
  • NO SERVICE CHARGE - LOW MAINTENANCE COSTS
  • IDEAL BUY TO LET
  • CHAIN FREE

Virtual Tour

** TWO BEDROOM BTL INVESTMENT OPPORTUNITY WITH 8% YIELD. TENANT IN PLACE AT £1550 PCM. CLOSE TO GIDEA PARK STATION ON ELIZABETH LINE. CHAIN FREE **

* VIRTUAL TOUR ONLINE *

OC Homes are pleased to offer for sale this well-presented two-bedroom flat, situated above commercial premises on Main Road, within walking distance to Gidea Park Rail Station, served by the Elizabeth Line with direct access into Central London and beyond. The property is conveniently close to the wide range of amenities in Gidea Park including, shops, bars, restaurants and leisure facilities. Ideally suited to buy-to-let investors with an 8% rental yield, this attractive property offers a range of appealing features. It also has very low maintenance costs, with no service charge or ground rent payable, and just an annual contribution to the buildings insurance premium.

The accommodation is on the first floor and comprises; a spacious reception room, two good size bedrooms, modern kitchen, and a modern three-piece bathroom suite. Ideally located close to lots of amenities, excellent public transport links, and a nearby park, this well-maintained property is presented in superb condition and is expected to generate strong interest. Contact the OC Homes sales team today to arrange your viewing.

Tenure InformationLeasehold; Approx. 120 Years Remaining
Service Charge & Ground Rent: Nil - Buildings Insurance Contribution Only - circa £300 per year
Council Tax: Havering Band C; £2056 per year


Download brochure

Stamp duty due

Based on a sale price of £250,000 the total amount of stamp duty payable will be:

*

Last updated: The calculator has been updated to reflect changes in stamp duty following the Autumn Budget on 30th October 2024 for April 1st 2025 onwards.

* This value is based on the standard rate and not applicable to first-time buyers or buy-to-let / second home buyers.

Further details

  • Status: Sold STC
  • Size: 701 sqft
  • Council tax band: C
  • Tenure: Leasehold
  • Parking spaces: On Street
  • Reference: 34189888

What else you need to know?

  • Lease expiry date: 2148-03-18

Location