Offers in Excess of £400,000

3 bed end of terrace house for sale in Douglas Road, Hornchurch (ref: 34582555)

Shortlist

Key features

  • IDEAL RENOVATION PROJECT
  • EXCELLENT TRANSPORT LINKS
  • LOTS OF LOCAL AMENITIES
  • POTENTIAL TO EXTEND
  • END OF TERRACE
  • CHAIN FREE
** IDEAL PROJECT HOME IN HORNCHURCH. LOTS OF LOCAL AMENITIES. CHAIN FREE **

* GUIDE PRICE - £400,000 TO £425,000 *

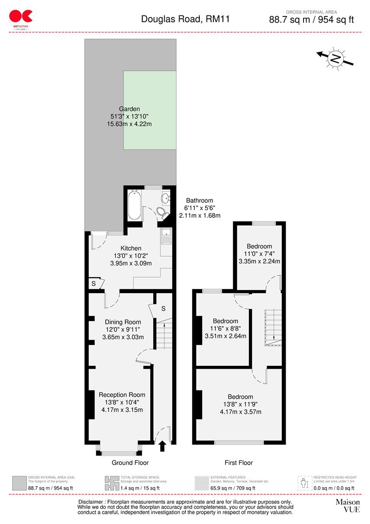
OC Homes are delighted to present to the sales market this three-bedroom house located on Douglas Road, Hornchurch, RM11. It is ideally located within walking distance to Romford Station (Elizabeth Line) and boasts huge potential to develop into a dream home.

The property is offered to the market chain free, and offers huge scope for a new buyer to add value and turn into the perfect family home in a sought after area. Accommodation comprises; ground floor - entrance hallway, double reception room with dining area, ground floor bathroom, and a good size kitchen / diner, which leads out to an east facing private garden. The first floor boasts three bedrooms as well as access to a loft space with can be converted into a further bedroom or two with bathroom (STPP).

Externally there is a good size private garden to the rear and a front garden with side access. The property is situated ideally for easy access into London with a choice of transport links and also boasts many local amenities including shops, restaurants, gyms and green spaces all within easy reach. To arrange a viewing exclusively through OC Homes, please call the sales team now.

Tenure InformationFreehold
Council Tax: Havering Band C; £2056 per year


Stamp duty due

Based on a sale price of £400,000 the total amount of stamp duty payable will be:

*

Last updated: The calculator has been updated to reflect changes in stamp duty following the Autumn Budget on 30th October 2024 for April 1st 2025 onwards.

* This value is based on the standard rate and not applicable to first-time buyers or buy-to-let / second home buyers.

Further details

  • New listing: launched in the last 10 days
  • Status: Available
  • Size: 954 sqft
  • Council tax band: C
  • Tenure: Freehold
  • Parking spaces: On Street
  • Reference: 34582555

Location