Sold STC
Offers in Region of £595,000

3 bed terraced house for sale in Nutfield Road, Leyton (ref: 34180606)

Shortlist

Key features

  • CHARMING 3 BED TERRACE
  • SCOPE FOR IMPROVEMENT
  • SOUGHT AFTER LOCATION
  • EXCELLENT TRANSPORT LINKS
  • IDEAL RENOVATION PROJECT
  • CHAIN FREE

Virtual Tour

** THREE BEDROOM TERRACED HOME WITH HUGE POTENTIAL CLOSE TO LEYTON STATION **

* VIRTUAL TOUR ONLINE *

OC Homes is delighted to present to the sales market, this three-bedroom terraced house on a lovely tree-lined street off High Road Leyton, E15. The property requires some modernisation and boasts lots of scope for development to turn into a lovely family home, moments from the tube, in a sought-after location.

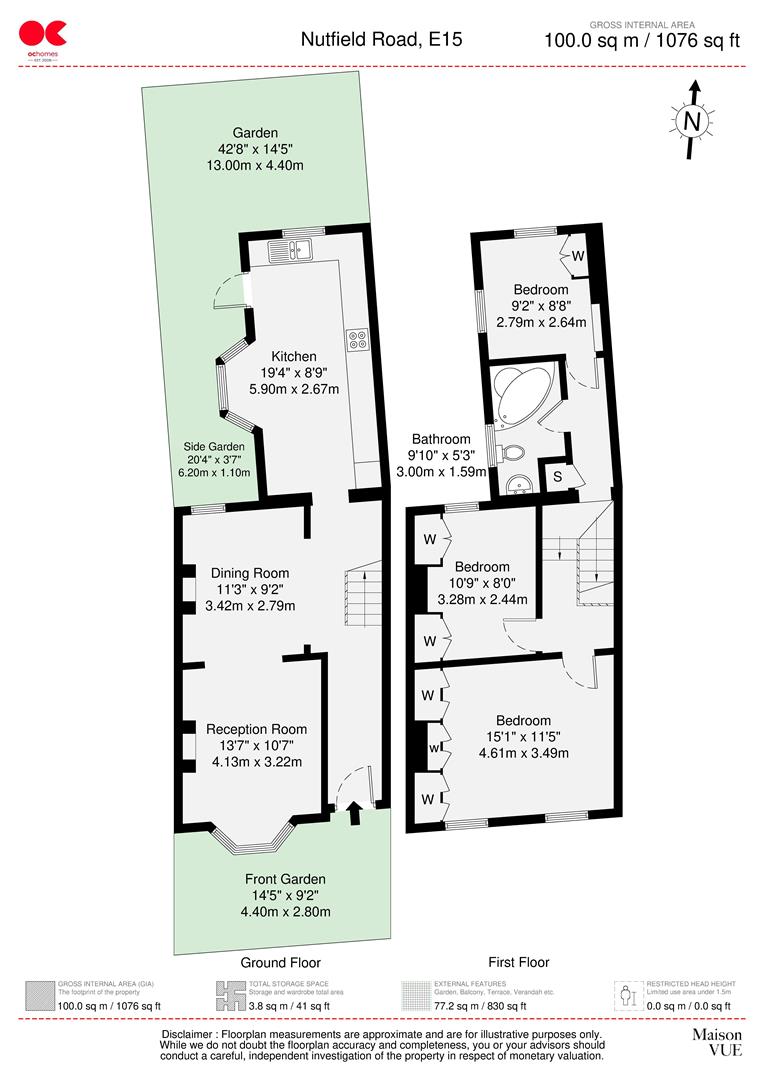
Accommodation comprises; Ground Floor - front garden, entrance hallway, reception room, kitchen / diner, and access to a good size rear garden with side return. The first floor comprises three bedrooms, a three-piece bathroom suite, and access to a sizeable loft that can be converted to a fourth bedroom with an en suite bathroom (STPP). This property is offered chain-free and is sure to attract a lot of interest. To arrange a viewing please call the OC Homes sales team now.

LocationNutfield Road is located off High Road Leyton and a short walk to Leyton Underground Station, which provides quick access into the City and beyond as well as being just one stop from Stratford with it's shopping outlets and many transport links. The property is located ideally close to a number of local amenities including the boutique shops, cafes, bars and restaurants of the popular Francis Road as well as the hive of activity on High Road Leyton with it's numerous eateries, retail outlets, parks and more. Transport links are excellent with Leyton Tube Station (Central Line) being within a 10 minute walk up the high road, as well as a number of bus links on High Road Leyton and superb road links via the A12 into Central London and beyond. There are also some wonderful green spaces within walking distance - Sidmouth Park, Coronation Gardens, and the historical Leyton Cricket Ground with its Stunning Pavilion are close by, and the picturesque Hollow Ponds at the tip of Epping Forest is a short cycle ride away.

Tenure InformationFreehold
Council Tax: Waltham Forest Band C; £2025 per year


Download brochure

Stamp duty due

Based on a sale price of £595,000 the total amount of stamp duty payable will be:

*

Last updated: The calculator has been updated to reflect changes in stamp duty following the Autumn Budget on 30th October 2024 for April 1st 2025 onwards.

* This value is based on the standard rate and not applicable to first-time buyers or buy-to-let / second home buyers.

Further details

  • Status: Sold STC
  • Size: 1076 sqft
  • Council tax band: C
  • Tenure: Freehold
  • Parking spaces: On Street
  • Reference: 34180606

Location