Offers in Region of £850,000

4 bed detached bungalow for sale in Ardleigh Green Road, Hornchurch (ref: 34538902)

Shortlist
** FOUR DOUBLE BEDROOM CHALET BUNGALOW WITH 118FT GARDEN & AMPLE PARKING. IDEAL FAMILY HOME IN SOUGHT AFTER LOCATION **

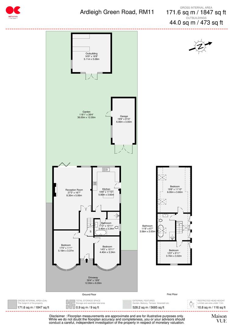
OC Homes are delighted to present to the sales market, this superb four-bedroom detached family home located on Ardleigh Green Road, Hornchurch, RM11, The property is full of character, well presented throughout and boasts circa 1850 sq ft of internal accommodation. It is ideally located within walking distance of Gidea Park Station (Elizabeth Line) and is the perfect family home with scope to improve and extend as required.

Accommodation comprises; ground floor - entrance hallway, two double bedrooms, ground floor bathroom, kitchen / diner, and a bright and spacious reception room with dining area, which leads out via bi-fold doors to a well-maintained private garden of 118ft with side return providing access from the front. There is a fully powered outhouse of to the back of the garden as well as a sizeable garage to the side. The first floor boasts two good size double bedrooms and a large modern four-piece family bathroom suite.

Externally, there is the beautifully maintained west facing garden to the rear with side access, garage, and fully powered outhouse, as well as off-street parking to the front for four cars. The property is situated ideally for easy access into London with a choice of transport links and also boasts many local amenities including shops, restaurants, gyms and green spaces all within easy reach. To arrange a viewing exclusively through OC Homes, please call the sales team now.

LocationLocated ideally between Hornchurch and Gidea Park, the property is situated in an ideal area with a host of transport links and local amenities. It is within walking distance to Gidea Park Station, making it ideal for commuters into London with services into Liverpool Street within half an hour. The Elizabeth Line from Gidea Park also facilitates direct access into Tottenham Court Rd, Paddington, and onto Heathrow Airport. There are a number of local amenities including shops, bars and restaurants on the surrounding roads. There are a choice of local schools including some Ofsted Outstanding rated Primary schools and highly regarded Secondary schools within the local catchment area as well as choice of local parks and leisure facilities, with the popular David Lloyds Health Club & Gym a within short walking distance.


Stamp duty due

Based on a sale price of £850,000 the total amount of stamp duty payable will be:

*

Last updated: The calculator has been updated to reflect changes in stamp duty following the Autumn Budget on 30th October 2024 for April 1st 2025 onwards.

* This value is based on the standard rate and not applicable to first-time buyers or buy-to-let / second home buyers.

Further details

  • New listing: launched in the last 10 days
  • Status: Available
  • Size: 1847 sqft
  • Council tax band: E
  • Tenure: Freehold
  • Parking spaces: Private
  • Reference: 34538902

Location