Offers in Region of £1,500,000

4 bed detached house for sale in Ernest Road, Emerson Park, Hornchurch (ref: 34265763)

Shortlist

Key features

  • FOUR BEDROOM DETACHED HOUSE
  • OVER 14,000 SQ FT EXTERNAL SPACE
  • DEVELOPMENT OPPORTUNITY
  • SOUGHT AFTER LOCATION
  • LOTS OF LOCAL AMENITIES
  • EXCELLENT TRANSPORT LINKS
  • CATCHMENT FOR OUTSTANDING SCHOOLS
  • CHAIN FREE

Virtual Tour

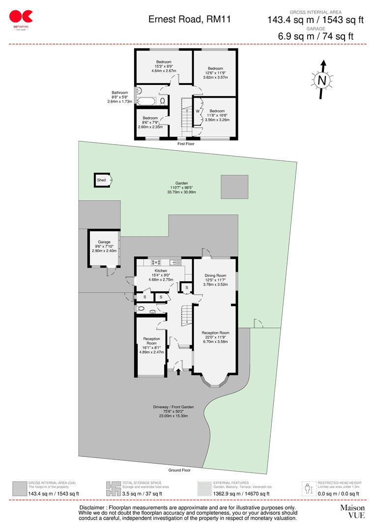
** 4 BED DETACHED HOUSE WITH HUGE PLOT IN EMERSON PARK. POTENTIAL TO EXPAND AND DEVELOP WITH 110FT REAR GARDEN & 75FT FRONT GARDEN. TOTAL EXTERNAL AREA OF OVER 14K SQ FT **
(VIRTUAL TOUR AVAILABLE ONLINE)

OC Homes are delighted to present to the sales market this fantastic development opportunity with this four bedroom detached house with over 14,000 sq ft of external space in the sought-after Emerson Park area. The property boasts huge potential to create a dream home, with a 75ft front garden and 110 ft rear garden, which can be extended into and increase the internal living space exponentially (STPP).

The accommodation is set over two levels and comprises; Ground Floor: Entrance hallway, ground floor w/c, two reception rooms, dining room, kitchen/diner, with access to the 110 ft rear garden. First floor: four bedrooms, three piece family bathroom, and access to a sizable loft space which can be converted into a fifth bedroom with bathroom (STPP). Externally, the property has a 75ft front garden with driveway, providing off-road car parking for multiple vehicles and garage to the side. The garden to the rear is over 110 ft with sizeable side return.

This property offers an opportunity for the buyer to acquire lovely detached property in a very convenient location close to a number of local amenities with scope to expand further. Location is superb, being on the sought-after Ernest Road with a host of bars, restaurants, shops and a David Lloyd gym, all within close proximity. Road links offer easy access to the A12 into Central London, and it is also within the catchment area of some outstanding local schools. To arrange a must-see viewing please call the OC Homes sales team now.

LocationErnest Road is a highly sought turning in the Emerson Park area of Hornchurch, Essex. The property is ideally located for easy access into London from Emerson Park Overground Station which is nearby, or Upminster Bridge Tube Station (District Line), which is also easily accessible. There are a number of local bars and restaurants as well some lovely green spaces and places of interest. Hornchurch High Street is also within walking distance with a choice of High Street stores as well as some boutique shops, restaurants and bars as well as a choice of leisure facilities. The local area is also well known for a number of Ofsted Outstanding rated schools, with the property being in the catchment area for highly sought primary and secondary schools. Road links into the City and beyond are quick with the A12 easily accessible as well as direct links onto the A13 in minutes.

Tenure InformationFreehold
Council Tax: Havering Band G; £3856 per year


Stamp duty due

Based on a sale price of £1,500,000 the total amount of stamp duty payable will be:

*

Last updated: The calculator has been updated to reflect changes in stamp duty following the Autumn Budget on 30th October 2024 for April 1st 2025 onwards.

* This value is based on the standard rate and not applicable to first-time buyers or buy-to-let / second home buyers.

Further details

  • New listing: launched in the last 10 days
  • Status: Available
  • Size: 1543 sqft
  • Council tax band: G
  • Tenure: Freehold
  • Parking spaces: Off Street
  • Reference: 34265763

Location